Torino (TO) - Via Giuseppe Luigi Lagrange

Trilocale di 86 MQ in affitto

1.850 € al mese

8686 m2
33 locali
22 bagni
Stampa Scheda

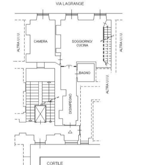
Esclusivo appartamento nel cuore di Torino, a pochi passi dalla stazione di Porta Nuova e alle spalle di Via Roma e Piazza CLN, in Signorile stabile d'epoca.
L'unità immobiliare è sita al quarto piano, e si compone da: ingresso con ampio soggiorno e cucina a vista, bagno con rivestimento in marmo con cabina doccia in cristallo, una camera da letto.
Una scala interna conduce ad altra zona indipendente al piano superiore, con bagno privato, adatta a seconda camera oppure studio.
Pavimenti in pregiato parquet , finestre in legno con doppi vetro-camera (isolamento termico e acustico), porta blindata, riscaldamento autonomo.
Libero da gennaio 2026

L'appartamento viene locato completamente arredato, con elementi moderni e di design.

Caratteristiche immobile

Zona

Centro, Quadrilatero Romano, Giardini Reali, Repubblica

Data immobile

09/02/2024

Contratto

Affitto

Prezzo

1.850 € al mese

Tipologia

Trilocale

Superficie

86 m2

Locali

3

Bagni

2

Stato

In buone condizioni

Classe energetica - IPE

C 175 KWH/MQ2

Spese condominiali

0 €

Riscaldamento

Autonomo

Cucina

Cucina aperta

Posizione

Ti interessa questo immobile?

Cliccando Invia, dichiaro di aver preso visione dell'informativa privacy

Oppure chiama al numero 011500306