Morciano Di Romagna (RN) - Via Santa Maria Maddalena

Terreno edificabile residenziale di 441 MQ in vendita

165.000 €

441441 m2
Stampa Scheda

Ci troviamo in un luogo dove il silenzio e la tranquillità regnano sovrani. Qui puoi costruire la casa perfetta per te e la tua famiglia, senza rinunciare ai comfort della città di Morciano di Romagna. Questo ampio terreno di 5000 mq, di cui 160 mq edificabili, ti offre la possibilità di realizzare un’abitazione indipendente su tutti i lati, con tutto lo spazio e la privacy di cui hai bisogno.

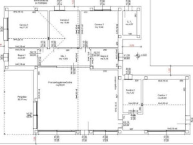
La posizione è ideale: scuole, supermercati e servizi per i tuoi bambini sono tutti a pochi minuti, permettendoti di conciliare la serenità della vita immersa nella natura con la comodità di avere tutto a portata di mano. Il progetto già approvato prevede una casa spaziosa e funzionale, con una grande zona giorno luminosa, perfetta per trascorrere momenti preziosi in famiglia. Le tre camere matrimoniali e i due bagni moderni garantiscono spazio e comfort per tutti.

Uno dei punti di forza di questa proprietà è il pergolato affacciato sulla vallata, un angolo di pace dove potrai rilassarti leggendo un libro, organizzare cene all’aperto o semplicemente goderti il panorama in totale tranquillità e privacy. Inoltre, la casa dispone di due cantine, ideali per riporre tutto ciò che serve e avere sempre ordine e funzionalità.

Questa soluzione è perfetta per chi desidera una casa su misura, progettata in base alle proprie esigenze e ai propri gusti. Se stai cercando lo spazio ideale per la tua famiglia o vuoi creare una bifamiliare per avere i tuoi genitori accanto senza rinunciare alla tua indipendenza, questa è la soluzione perfetta.

Un'opportunità unica per costruire la casa che hai sempre desiderato, immersa nel verde ma con tutti i servizi a pochi passi. Contattaci per scoprire di più e lasciati conquistare dalla magia di questo luogo!

Caratteristiche immobile

Data immobile

18/10/2025

Contratto

Vendita

Prezzo

165.000 €

Tipologia

Terreno edificabile residenziale

Superficie

441 m2

Posizione

Ti interessa questo immobile?

Cliccando Invia, dichiaro di aver preso visione dell'informativa privacy

Oppure chiama al numero 011500306