Jesi (AN) - Via Galeno 2
Rif.360-4C SC " Cantiere IRON MAN "
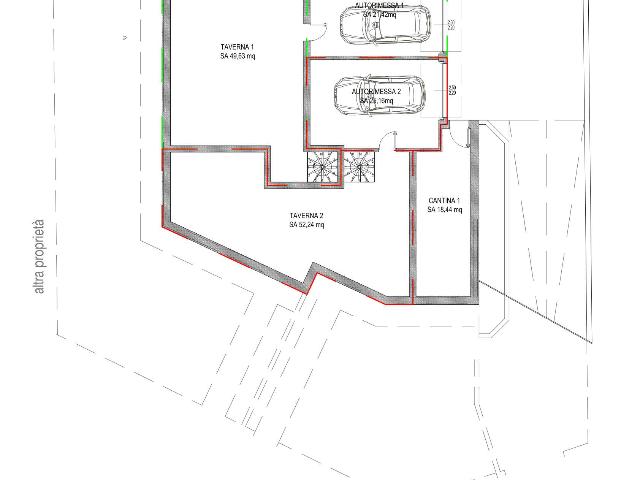
Detrazioni fiscali per ristrutturazione ed acquisto di posto auto pertinenziale per un valore di € 10.000,00 detraibili in 10 anni.
Prezzo al netto delle detrazioni € 347.000,00
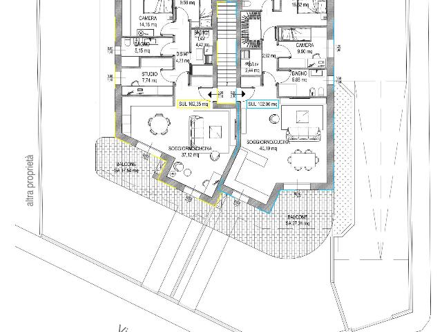
A Jesi, in Via Galeno, proponiamo un luminoso appartamento di 102 mq al primo piano di una quadrifamiliare di nuova costruzione, pensato per offrire comfort e qualità in ogni dettaglio.
La zona giorno accoglie con un ampio living e una cucina a vista, un ambiente moderno e conviviale che si apre su una splendida terrazza di 18 mq, ideale per momenti di relax all'aria aperta.
Nella zona notte troviamo una raffinata camera padronale con cabina armadio, una camera singola, uno studio perfetto per lavorare o dedicarsi alle proprie passioni, oltre a due bagni curati e funzionali.
Completano la proprietà una comoda cantina di 25 mq e un posto auto esclusivo della stessa metratura, spazi aggiuntivi che rendono la soluzione ancora più pratica e confortevole.
Il progetto si distingue per lo stile contemporaneo, le tecnologie avanzate e l'alta efficienza energetica: tutti gli appartamenti sono in classe A e dotati di impianto fotovoltaico compreso. Gli interni possono essere personalizzati in base alle esigenze dell'acquirente, con finiture di ottima qualità e un capitolato di pregio.
Un'abitazione moderna, accogliente e pensata per vivere al meglio ogni giorno.
Se sei interessato a questo immobile, il riferimento che lo identifica è il
360-4C SC, contattaci indicando questo riferimento per avere tutte le informazioni che ti interessano.
Il nostro numero di telefono è 0712905445 oppure invia una mail a info@immobiliareprima.it i nostri agenti sono a tua completa disposizione.
Data immobile
07/11/2025
Contratto
Vendita
Prezzo
357.000 €
Tipologia
Appartamento
Superficie
127 m2
Locali
5
Bagni
2
Classe energetica
A
Piani stabile
2
Riscaldamento
Autonomo
Ti interessa questo immobile?