Mondovi' (CN) - Località Beila

Terreno Agricolo di 29015 MQ in vendita

163.000 €

29.01529.015 m2
11 locale
Stampa Scheda

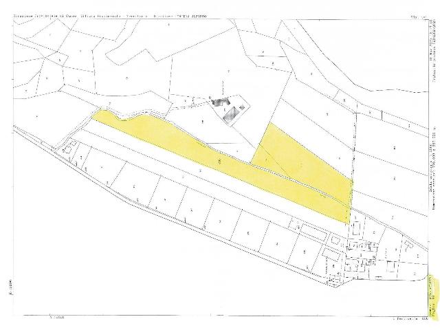
Terreno agricolo pianeggiante in vendita – Mondovì, con accesso da via Rosa Bianca – Beila - 7,62 giornate piemontesi
La caratteristica principale di questo terreno costituito da tre mappali adiacenti formanti un unico corpo attraversati da bialera irrigua del consorzio irriguo “carassona” è la sua pianeggiatura, che lo rende ideale per la coltivazione di diverse tipologie di colture. La posizione strategica facilmente accessibile garantisce un accesso comodo e facilitato, con qualsiasi mezzo agricolo favorendo il trasporto dei prodotti e la gestione quotidiana delle attività rurali.
Con una superficie totale di 29.015 m², completamente sfruttabile, il terreno si distingue per la fertilità del suolo e la presenza di acqua per l'irrigazione, elementi che lo rendono particolarmente adatto alla coltivazione di cereali, ortaggi, frutteto e altre colture.
L'appezzamento è inoltre dotato di un sistema di drenaggio efficiente, fondamentale per la corretta gestione delle acque piovane e per garantire un'irrigazione omogenea, assicurando così produzioni agricole di qualità.
La zona “Beila – Ferrone”, in cui è situato il terreno, è rinomata per il suo contesto naturale suggestivo e per la tranquillità dell'ambiente. Il clima mite e le caratteristiche del suolo favoriscono un'attività agricola redditizia e sostenibile.
Questo terreno rappresenta una grande opportunità di investimento per chi desidera ampliare un'attività agricola, sfruttando al massimo le potenzialità di una delle aree più apprezzate del territorio monregalese.
Non perdere l'occasione di diventare proprietario di un terreno fertile e ricco di potenzialità, ora libero da affittavoli e inquilini

Caratteristiche immobile

Data immobile

28/11/2025

Contratto

Vendita

Prezzo

163.000 €

Tipologia

Terreno Agricolo

Superficie

29.015 m2

Locali

1

Spese condominiali

0 €

Posizione

Ti interessa questo immobile?

Cliccando Invia, dichiaro di aver preso visione dell'informativa privacy

Oppure chiama al numero 011500306