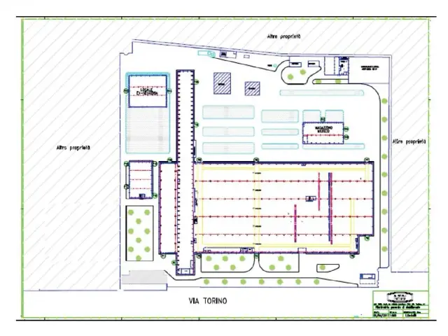
Condove (TO) - Via Torino 21
In vendita un ampio capannone situato a Condove, in una zona industriale strategica e facilmente accessibile.
Libero al rogito, in un'area di circa mq. 120.000, questo immobile si estende su un totale di 35.000 metri quadrati, offrendo un'ampia superficie adatta ad attività produttive di vario genere.
Lo stato di conservazione è da ristrutturare, offrendo così la possibilità di personalizzare gli spazi e adattarli alle esigenze specifiche dell'acquirente.
All'interno del capannone sono presenti anche 5.000 mq di uffici, ideali per ospitare lo staff e gestire le attività amministrative e direzionali.
Ampio piazzale di circa 80.000 mq, ideale per agevolare il carico e lo scarico delle merci e per il parcheggio dei mezzi pesanti.
Questo capannone in vendita a Condove rappresenta un'opportunità imperdibile per chi cerca uno spazio ampio e funzionale per avviare o ampliare la propria attività, in una zona industriale altamente strategica e con tutti i servizi necessari a portata di mano.
Data immobile
04/12/2025
Contratto
Vendita
Prezzo
Prezzo su richiesta
Tipologia
Capannone
Superficie
120.000 m2
Locali
1
Stato
Da ristrutturare
Spese condominiali
0 €
Ti interessa questo immobile?